Описание
Характеристики
Отзывы
Как купить?
Доставка
Вопрос-Ответ
Подходит для установки во двор многоэтажного дома. Антивандальное оборудование.
Бизиборд Азбука М1 РЭ005 представляет собой панель с нарисованными на ней буквами различного цвета.
Оборудование предназначено для установки на детских игровых площадках..
Комплект поставки:
- Развивающий элемент Азбука — 1 шт.
- Паспорт изделия.
Материалы конструкции и их покрытие:
- Стойки — брус клееный сечением 100х100 мм.
- Накладки: влагостойкая березовая фанера толщиной 24 мм ГОСТ 3916.1-96.
- Элементы крепежа оцинкованы и снабжены предохранительными колпачками. Торцевые отверстия труб закрыты пластиковыми заглушками.
- Фанерные детали предварительно обработаны антисептической выравнивающей грунтовкой. Металл — полимерно-порошковая краска.
- Рисунок нанесен методом печати на УФ принтере и покрыт лаком.
- Покрытия устойчивы к сложным атмосферным условиям, истиранию, воздействию ультрафиолета.
Особенности монтажа:
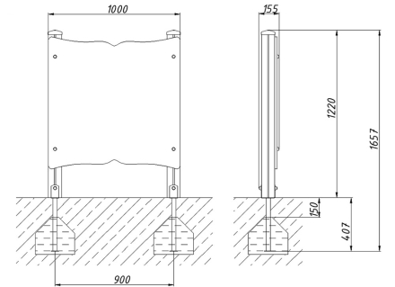
Монтаж оборудования осуществляется путем бетонирования опор каркаса на глубину не менее 400 мм. Бетонирование производится таким образом, чтобы поверхность фундамента была выполнена на отметке -150 мм от уровня площадки. Оставшееся пространство ям после монтажа засыпается с уплотнением до уровня детской площадки.
Характеристики
Возрастная категория
от 2-х лет
Габариты
1000х155х1220 мм
Покрытие
УФ-печать
Материал
Дерево, Клееный брус, металл, влагостойкая березовая фанера
Способ установки
Бетонирование
Вес товара (основной)
35 кг
Тип
Развивающий элемент
Страна-производитель
Россия
Название модели
Азбука М1 РЭ005
Отзывов ещё нет — ваш может стать первым.
Все отзывы 0
Доставка по Санкт-Петербургу
Доставка по городуДоставка по России и СНГ
Установка
Стоимость установки рассчитает менеджерРазвивающий элемент Азбука М1 РЭ005 для детской площадки - Вопрос-Ответ
Не заполнено поле "Имя"
Не заполнено поле "Телефон"
Не заполнено поле "Email"
В тексте вопроса должно быть как минимум 3 символа
Нажимая на кнопку "Задать вопрос" Вы даете согласие на обработку персональных данных






